7812 53rd Street, TAMPA, FL 33617
- MLS#: O6335449 ( Residential )
- Street Address: 7812 53rd Street
- Viewed: 26
- Price: $400,000
- Price sqft: $256
- Waterfront: No
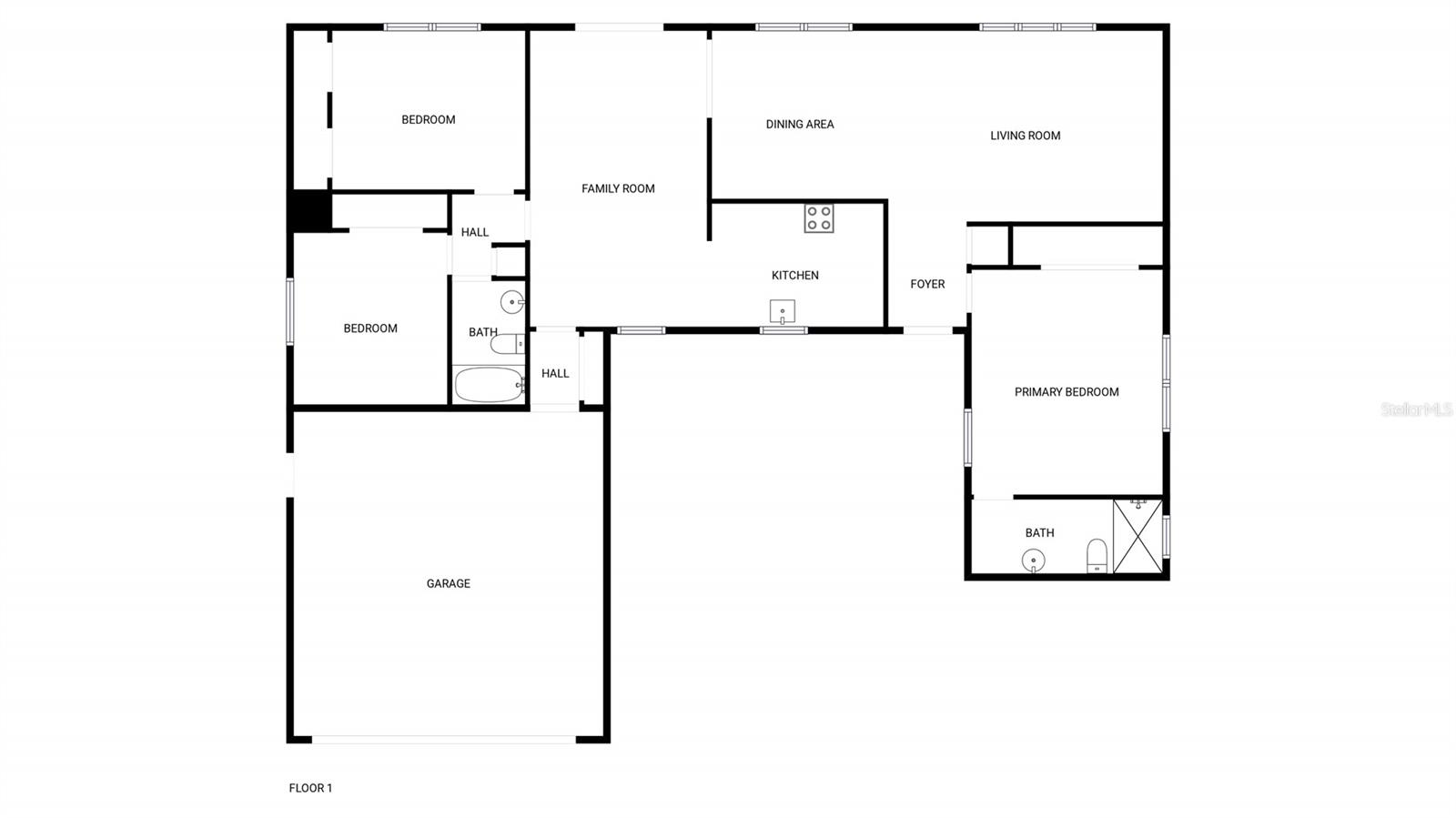
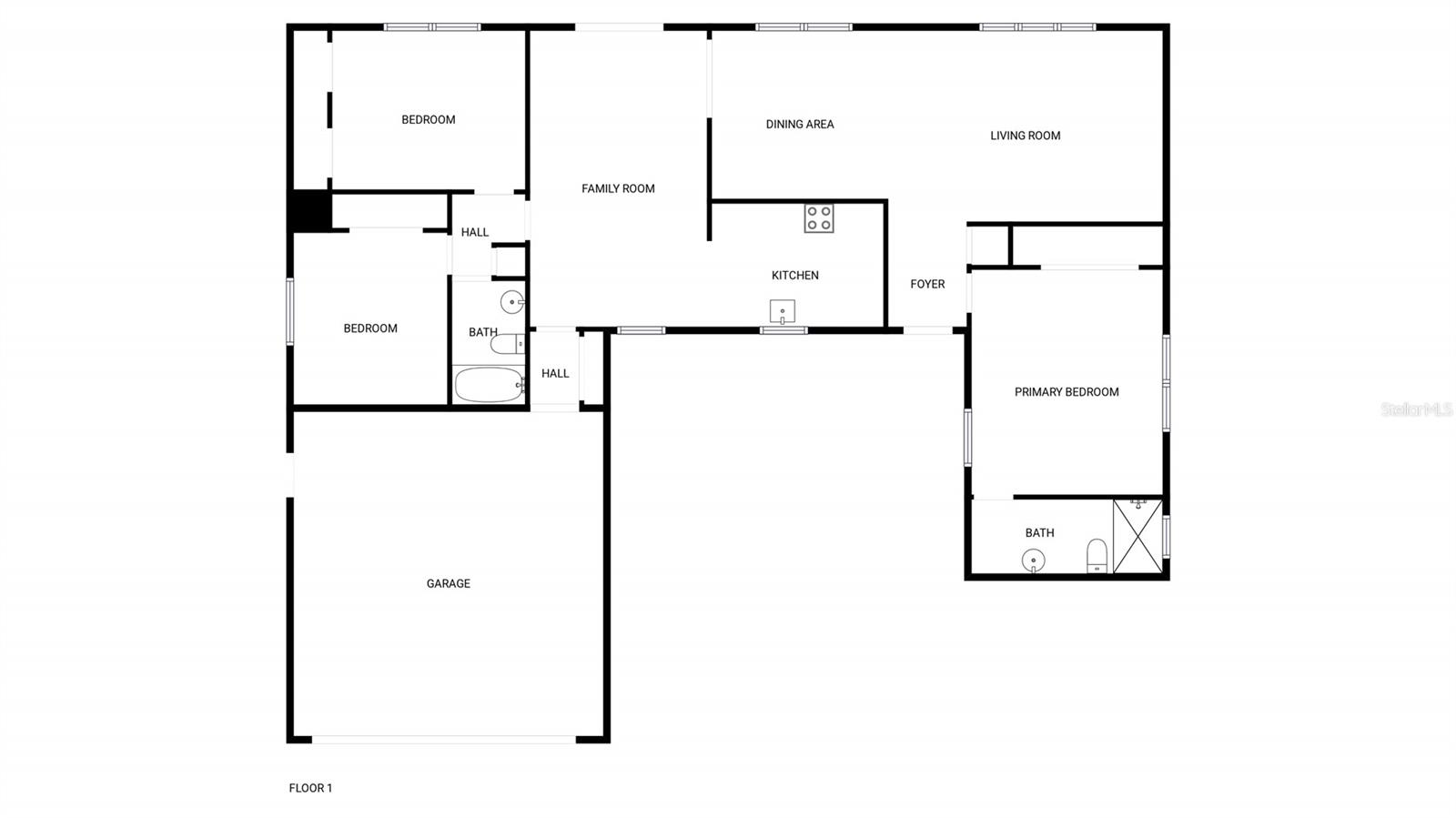
- Year Built: 1968
- Bldg sqft: 1564
- Bedrooms: 3
- Total Baths: 2
- Full Baths: 2
- Garage / Parking Spaces: 2
- Days On Market: 152
- Additional Information
- Geolocation: 28.0194 / -82.3979
- County: HILLSBOROUGH
- City: TAMPA
- Zipcode: 33617
- Subdivision: Unplatted
- Provided by: OPENDOOR BROKERAGE LLC
- Contact: Karen Albright
- 480-462-5392

- DMCA Notice
-
DescriptionOne or more photo(s) has been virtually staged. Welcome to this beautifully transformed property featuring new windows, new roof and new HVAC system! The interior boasts a fresh, neutral color paint scheme, new flooring throughout and a completely remodeled kitchen. The primary bedroom provides ample storage space with the large closet. The exterior has been freshly painted, enhancing its curb appeal. The backyard offers new fencing perfect for outdoor relaxation. With all these updates, this home is ready for you to make it your own. Come and see the quality and care put into this ready house. 100 Day Home Warranty coverage available at closing
































